TAKETOYO BASE
TRAILER HOUSE / CONTAINER HOUSE
展開する可能性を
モデルハウスで「体感しよう」
愛知県知多郡武豊町の製造工場敷地内にモデルハウスをオープン。限られたスペースを最大限に活用できるUNFOLD.のトレーラーハウスを体感しながら、自分たちの暮らしや事業を拡張する、豊かな将来設計を一緒に考えましょう。
- Addess
- 製造工場・モデルハウス「TAKETOYO BASE」
〒470-2322
愛知県知多郡武豊町字塩田103-2 - Contact
-
営業時間 / 9:00~17:00
モデルハウス見学は完全予約制 - Access
- JR武豊駅より徒歩17分
名鉄河和線「上ゲ」駅より徒歩12分
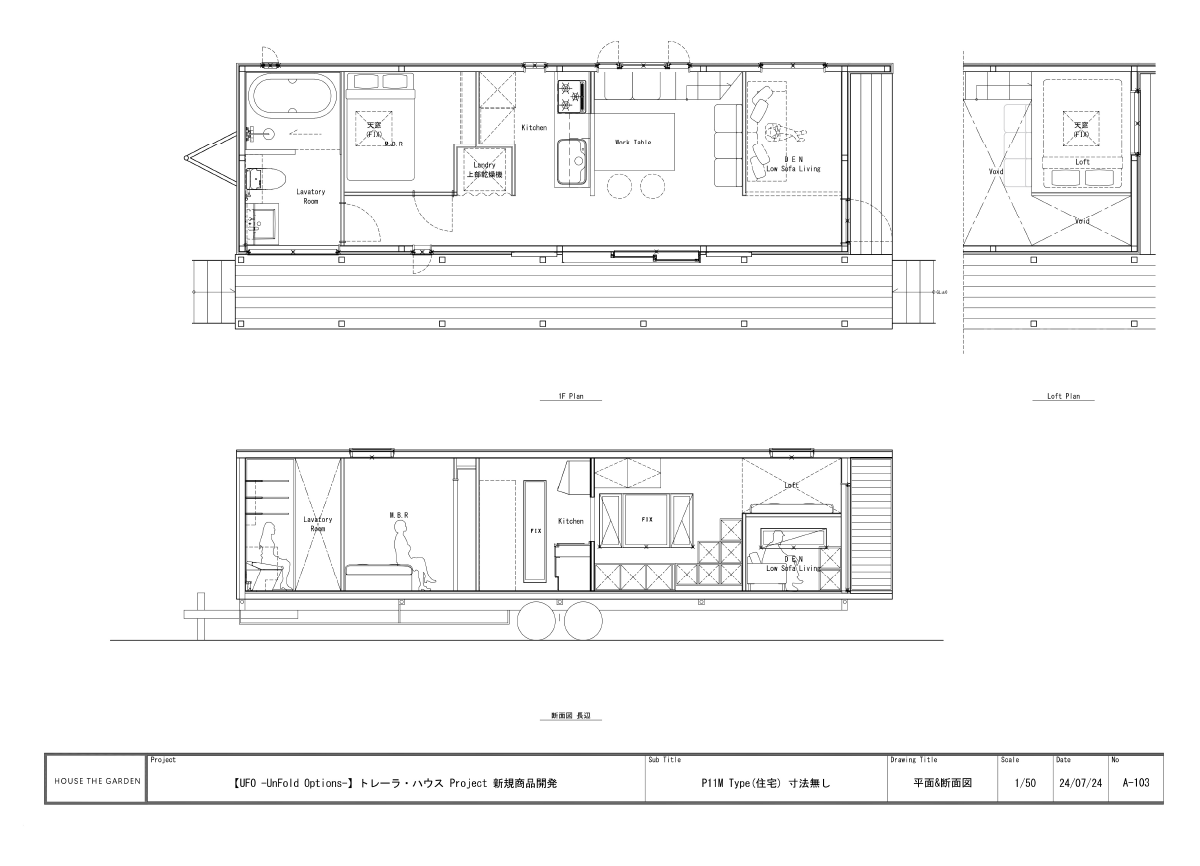
Model 1
UNFOLD.
トレーラーモデルハウス
単身者もしくは夫婦で利用する住居モデルから、家族や仲間たちと利用できる広めのモデルもラインナップ。常設建物より低コストにもかかわらず快適に暮らせる設備・仕様・間取りが備わっており、別荘やセカンドライフにも人気です。

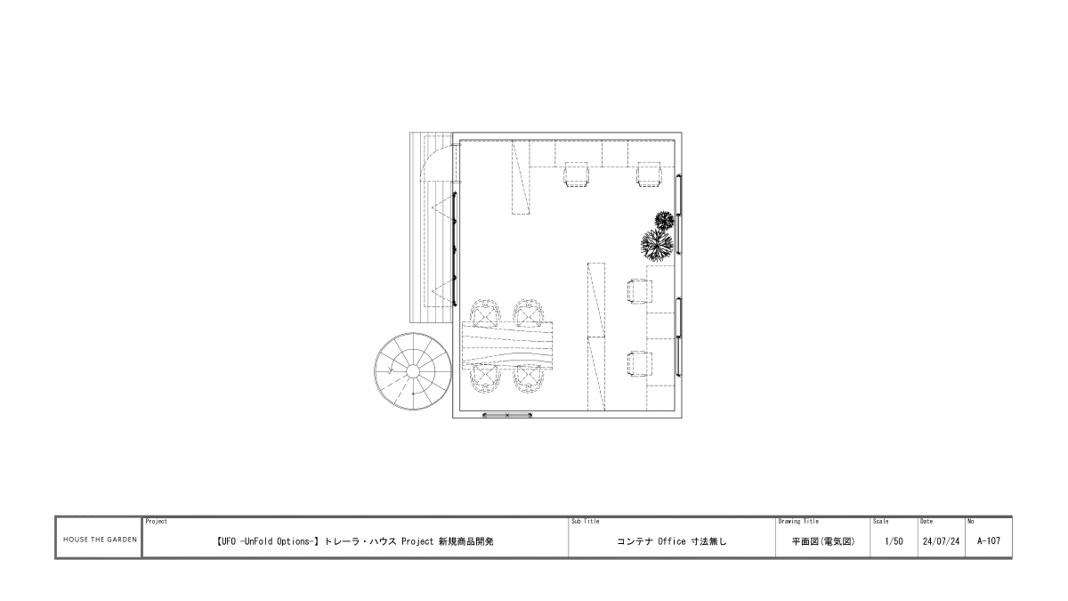
Model 2
UNFOLD.
コンテナモデルハウス
美容室やカフェなど商用利用の店舗モデルや、事業拠点として活用するオフィスモデルをラインナップ。ウッドデッキを設置して建物自体を展開すれば、建物面積以上の開放感を実現します。一定期間設置する現場事務所などにもおすすめです。













